·Î±×ÀÎȸ¿ø°¡ÀÔ

     

     

Ä«Å×°í¸® HYDRAULIC GATE & PUMP
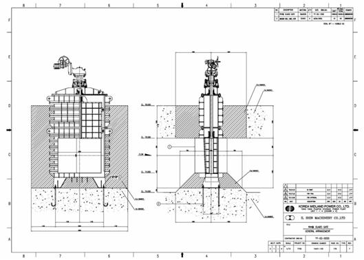
Á¦¸ñ GUARD GATE
ÀÛ¼ºÀÚ ilshinm
ÀÛ¼ºÀÏÀÚ 2013-09-06
 


 


 

Á¶È¸¼ö 3461
´Ù¿î·Îµå¼ö 0